
PREDANÉ: Na predaj: 2-izbový byt na Slovinskej ulici, Trnávka, 2x balkon
- Predaj
- 2-izbový byt
- 64 m2
- Bratislava-Ružinov
Ponúkame na predaj priestranný 2 izbový byt v secesnej budove s vlastným dvorom - záhradou, v samotnom srdci STARÉHO MESTA, len pár krokov od PREZIDENTSKÉHO PALÁCA a záhrady, ul. Tolstého.
Táto atraktívna lokalita ponúka kvalitné mestské bývanie so všetkými službami na dosah ruky. V blízkom okolí sa nachádza množstvo reštaurácií, kaviarní, obchodov, vzdelávacích zariadení, ale taktiež množstvo pamiatok, divadiel a iných kultúrnych inšitúcií. V pohodlnej pešej vzdialenosti sa nachádzajú aj zástavky MHD.
Byt je situovaný na vyvýšenom prízemí v historickej, pamiatkovo chránenej budove, ktorá vás privíta honosnou vstupnou bránou.
Výmera podlahovej plochy bytu predstavuje 65,75 m2 + k bytu prislúchajú dve murované pivnice o rozlohe 10,86 m2 a 7,14 m2.
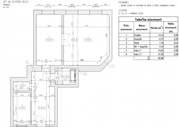
Po zameraní skutkového stavu: podlahová plocha bytu je 69,68 m2 ( viď pôdorys vo fotogalérii )+ dve pivnice.
Príjemným bonusom je uzavretý dvor s udržiavanou záhradou, vďaka ktorej máte aj v centre mesta k dispozícii svoj kúsok prírody.
K bytu prislúcha spoluvlastnícky podiel na pozemku pod bytovým domom a dvorom.
Interiér bytu s pôvodnými prvkami - dvojkrídlové drevené dvere, stromčekové drevené parkety, keramická kachlová pec, špaletové okná a vysoké stropy 3,5 m vám už na prvý pohlaď navodia atmosféru staromestského bývania.
Dispozícia bytu pozostáva zo vstupnej haly, kuchyne, komory, kúpeľne s toaletou a 2 izieb.
Byt je v pôvodnom stave, rekonštrukcia ponúka niekoľko alternatívnych dispozičných riešení.
Byt má samostatné vykurovanie: plynový kotol Junkers, vyhrievacie telesá ,,gamatky,,.
Bytový dom prešiel revitalizáciou fasády, spoločných priestorov, zrenovovaná bola aj vstupná brána s elektronickým vrátnikom.
Mesačné náklady predstavujú 122 eur + 37 eur elektrina + 17 eur plyn/ 1 osoba.
Parkovanie: rezidenčné parkovanie v okolí bytového domu.
Okolie:
- prestížna historická lokalita
- kompletná občianska vybavenosť v pešej dostupnosti: základná škola s materskou školou, jazyková škola, zdravotnícke zariadenia, lekárne, supermarkety, pobočky bánk, fitness centrum, Yoga štúdio, reštaurácie, kaviarne
- zastávka MHD len minútu od bytového domu
- vynikajúce dopravné napojenie do všetkých častí BA
- historické centrum v pešej dostupnosti
- Prezidentská záhrada, ktorá sa nachádza v tesnej blízkosti byt. domu - ideálne miesto na prechádzky.
Ulica: | Tolstého |
---|---|
Obec: | Bratislava-Staré Mesto |
Okres: | Bratislava I |
Kraj: | Bratislavský kraj |
Druh: | Byty |
Typ: | Predaj |
Typ bytu: | 2-izbový byt |