Výmerou nadštandardný rodinný dom, udržiavaná záhrada
- Predaj
- Rodinný dom
- 6 izb
- 186 m2
- Miloslavov
Ponúkame na predaj dvojpodlažný 6 izbový rodinný dom, ktorý sa nachádza v OBĽÚBENEJ ČASTI STUPAVY, v BLÍZKOSTI CENTRA, mimo hlavného dopravného ťahu, v zástavbe rodinných domov.
Táto časť Stupavy ponúka komfortné bývanie kde nie je potrebné jazdiť autom, stačí len zopár minút pešou chôdzou a kompletnú občiansku vybavenosť máte na dosah. Novému majiteľovi ponúka ideálnu kombináciu pokojného rodinného bývania v prírode s pohodlnou a rýchlou dostupnosťou do Bratislavy.
Dvojpodlažný, čiastočne podpivničený SAMOSTATNE STOJACI 6 izbový rodinný dom, pôvodne 8 izbový s úžitkovou plochou 342 m2 sa nachádza na ROVINATOM POZEMKU s rozlohou 837 m2.
Svojou dispozíciou je dom predurčený pre BÝVANIE VIACČLENNEJ RODINY, DVOJGENERAČNÉ BÝVANIE, ponúka možnosť prerozdelenia na 2 samostatné bytové jednotky.
HLAVNÉ BENEFITY:
*skvelá poloha v Stupave
* ideálny pozemok 837 m2
*všetky IS: voda, elektrina, plyn, kanalizácia.
* viacgeneračné bývanie
* veľká dvojgaráž
* murovaná podpivničená šopa
* 2 kuchyne + letná murovaná kuchyňa
* dve kúpeľne, dve toalety, kombinácia: vaňa aj bezbariérový sprchovací kút
* zvýšené stropy na 1.NP a 2.NP: 2,78 m.
* okná v dome sú orientované na všetky svetové strany
* internet a TV: optická sieť .
Súčasťou tejto nehnuteľnosti je KRÁSNA UDRŽIAVANÁ ZÁHRADA s vinohradom, okrasnými a ovocnými drevinami, množstvom kvetov (ruže, cibuloviny, trvalky) aj s priestorom pre úžitkovú záhradu. Dominantou záhrady je parkový strom liriodendrón, veľká figa a dvestoročný olivovník.
Záhrada ponúka absolútne súkromie, priestor na príjemný relax, posedenie pri krbe, či grilovanie pri zastrešenej terase a SAMOSTATNEJ MUROVANEJ LETNEJ KUCHYNI, v ktorej sa nachádza kuchynská linka s plynovou rúrou a pieckou na tuhé palivo.
Nadšencov pre záhradníčenie určite poteši praktická SAMOSTATNÁ MUROVANÁ ŠOPA, ktorá poskytuje úložný priestor na záhradné náradie, záhradný nábytok, sezónne veci ( napr. bicykle ). V šope sa nachádza podpivničený priestor kde je možnosť skladovať zeleninu a ovocie, slúži ako vínna pivnica.
Samozrejmosťou je vlastná STUDŇA S ČERPADLOM, ktorá zabezpečuje závlahu záhrady.
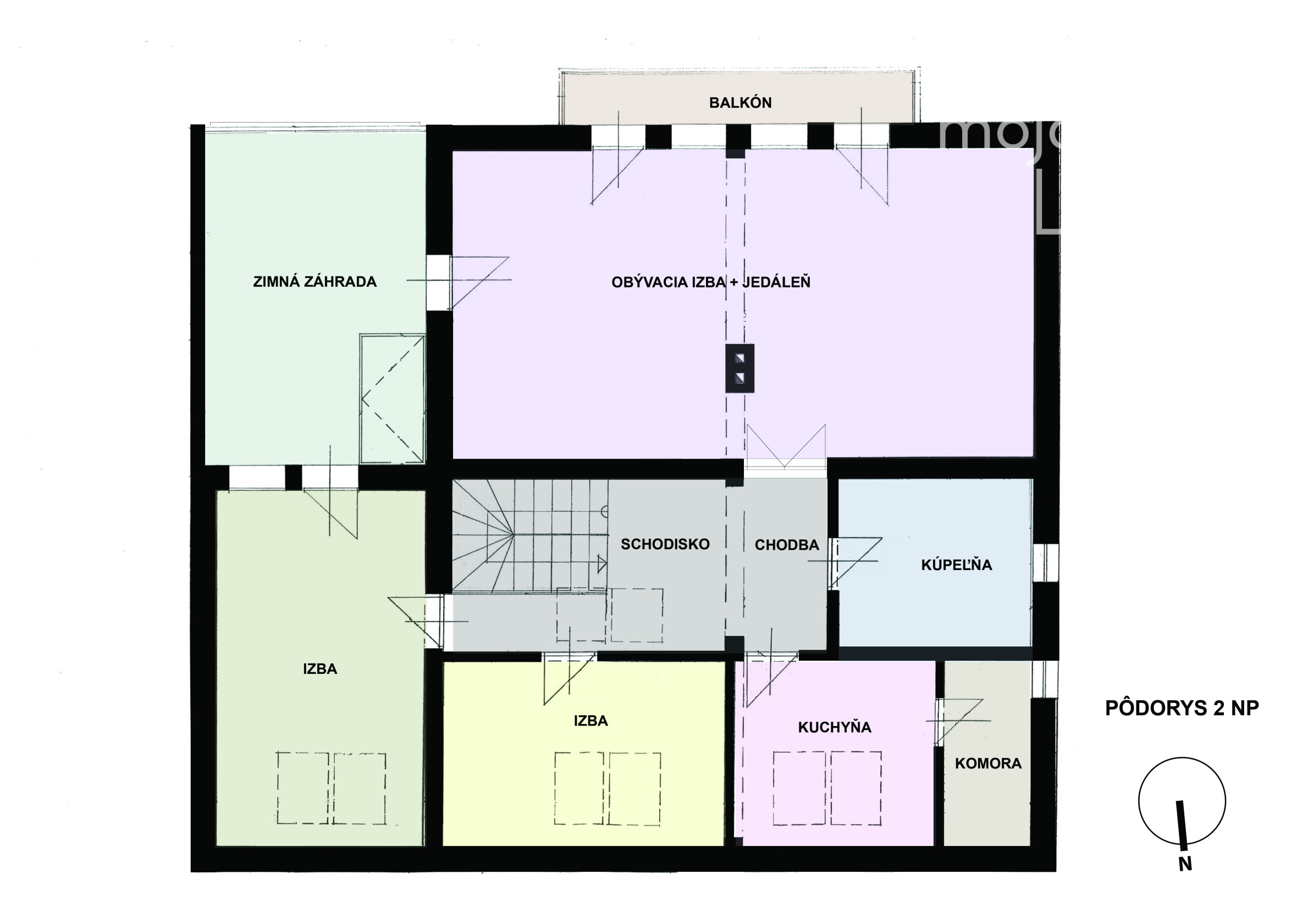
Rodinný dom pozostáva z 1.NP, 2.NP a podpivničeného priestoru.
Súčasťou domu je PRIESTRANNÁ GARÁŽ 48 m2 s elektrickou bránou pre dve autá, z ktorej je prístup do domu suchou nohou. Parkovanie je možné aj pred domom.
DISPOZÍCIA:
1.NP:
- dvojgaráž
- chodba
- schodisko
- kuchyňa s jedálenskou časťou, so vstupom na terasu a na záhradu/Južná strana
- komora
- terasa
- kúpeľňa s umývadlom, WC a bezbariérovým sprchovacím kútom
- 3 samostatné izby ( 1 izba je orientovaná na Juh a 2 izby na Sever )
2.NP:
- schodisko
- priestranná hala
- obývacia izba s krbom prepojená s jedálenskou časťou so vstupom na balkón, ponúka sa výhľad na celú záhradu/Južná strana
- kúpeľňa s umývadlom, WC, rohovou vaňou a sprchovacím kútom
- kuchyňa s komorou
- 2 samostatné izby
- zimná záhrada/Južná strana
Suterén:
- technická miestnosť
- ďaľšie 3 samostatné miestnosti
VYBAVENIE:
- vykurovanie rodinného domu zabezpečujú dva okruhy kúrenia so samostatnými dvomi kotlami Junkers so zásobníkmi TÚV pre každé podlažie, rozvod tepla - radiátormi.
- 1.NP/južne orientované okná: plastové francúzske okná/dvere (výška 2,4 m) s izolačným dvojsklom a exteriérovými markízami
- 1.NP/severne orientované okná: plastové s izolačným trojsklom a exteriérovými elektrickými roletami
- 2.NP/južne orientované okná: plastové francúzke okná/dvere (výška 2,4 m) s izolačným dvojsklom a exteriérovými markízami
- 2.NP/severne orientované okná: strešné okná Velux s izolačným trojsklom a exteriérovými markízami
- podlahové krytiny: laminátová podlaha, keramická dlažba
- 1.NP/kuchynská linka vybavená vstavanými spotrebičmi: plynová varná doska, elektrická rúra, umývačka riadu, chladnička
- 2.NP/kuchynská linka vybavená vstavanými spotrebičmi: plynová varná doska, elektrická rúra, chladnička
- klimatizačná jednotka umiestnená na 2.NP.
Zastavaná plocha letnej kuchyne: 24 m2 + krytá terasa: 11 m2
Zastavaná plocha podpivničenej šopy: 39 m2 + terasa: 13,50 m2
Zastavaná plocha domu: 171 m2
LOKALITA:
V okolí rodinného domu sa nachádza Billa, COOP, Jednota, kultúrny dom, štadión, knižnica, zdravotné stredisko, pošta, základná škola, materské školy, sobotňajšie Stupavské trhy s lokálnymi produktami, kostol, obchody a reštaurácie.
Pár minút od Vášho nového bývania sa nachádza Zámocký park s kaštieľom, rybníkmi a krásnou okolitou prírodou.
Mesto Stupava poskytuje svojmu obyvateľstvu kompletnú občiansku vybavenosť a pohodlné bývanie v pokojnom prostredí obklopenom lesmi Malých Karpát, s množstvom turistických a cyklistických trás.
Pár minút autom máte k dispozícii nákupné centrum Bory Mall s bohatými službami, Hornbach, OBI, Metro, Kaufland, nemocnicu Bory.
Lokalita malebného mestečka STUPAVA zaujme najmä tých, ktorí hľadajú harmonické spojenie pokojného vidieckeho prostredia, rýchleho prístupu do Bratislavy, skvelej občianskej vybavenosti a blízkej prírody.
| Ulica: | Cementárenská |
|---|---|
| Obec: | Stupava |
| Okres: | Malacky |
| Kraj: | Bratislavský kraj |
| Druh: | Domy |
| Typ: | Predaj |
| Typ domu: | Rodinný dom |